Superficie
Vani
Camere
Bagni
Descrizione
Villa singola in vendita - 14 vani - 340 mq - con ingresso indipendente - posto al piano Piano terra
composto da 8 camere e 8 bagni
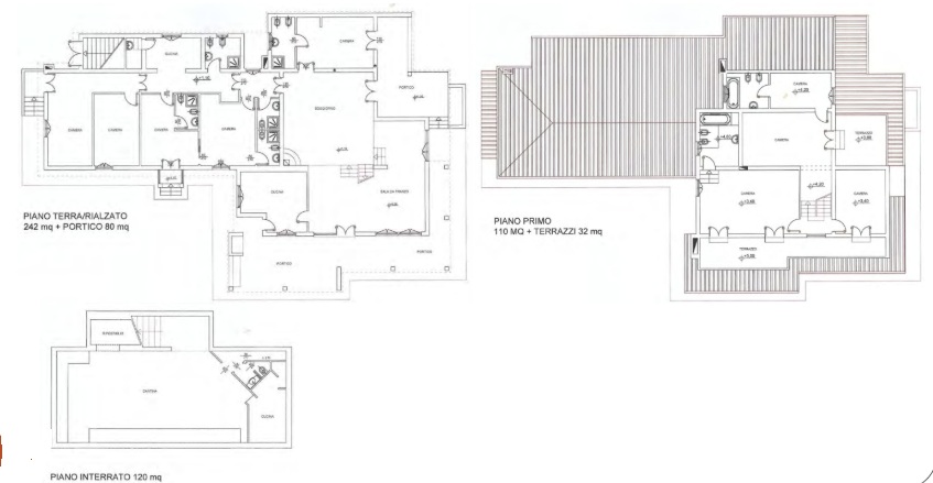
Elegante villa di pregio di grande metratura nel centro di Avenza - Carrara, a 2 km dal mare, con ampio giardino di proprietà ed accesso indipendente da via privata. L’immobile si sviluppa su tre livelli per complessivi 450 mq (di cui 350 mq abitativi su due piani e 100 mq di taverna recentemente ristrutturata).
L’incantevole giardino di 1800 mq, con piante secolari ed alberi da frutto, incornicia l’immobile. Completano
la proprietà un garage in muratura, un’area interna adibita a parcheggio (4 posti auto) e due posti auto esterni riservati ad uso esclusivo. Adatta, oltre all’uso residenziale per famiglia singola o per due nuclei famigliari, anche ad uso ricettivo (ad oggi ospita una ben avviata attività di BED & BREAKFAST con 6 camere
affittabili e clientela consolidata).Possibilità di suddivisione in due unità abitative indipendenti.
L’IMMOBILE L’elegante stile architettonico regala all’immobile un grande impatto visivo. L’ampio porticato con barbecue in muratura accompagna all’interno della villa dove, al piano terra, si aprono l’ampio salone con camino angolare, la luminosa sala da pranzo e la cucina spaziosa e funzionale. Tra piano rialzato e primo piano, di differenti tipologie e variamente articolate, si distribuiscono otto camere e sette bagni di diverse metrature e finiture, complete di balconi e accessi diretti al giardino. L’impianto planimetrico è armonico e ben strutturato, sorprendente nel gioco dei livelli ed adatto a differenti esigenze abitative.
L’efficace distribuzione dei grandi spazi interni ed esterni conferisce alla proprietà grande comfort abitativo. L’ampia taverna, recentemente ristrutturata e completa di zona cucina e servizi, è uno spazio di 100 mq con volte a botte e mattoni a vista, completo di accesso
indipendente dal giardino.
Classe energetica: G - Rif. 947c
Caratteristiche
- Prezzo
- € 750.000
- Contratto
- Vendita
- Tipologia
- Villa
- Riferimento
- 947c
- Superficie
- 340 m2
- Condizioni
- Buono
- Vani
- 14
- Camere
- 8
- Bagni
- 8
- Posti auto
- 5
- Piano
- Piano terra
- Piani totali
- 2
- Riscaldamento
- Autonomo
- Condizionatore
- Solo predisposizione
- Arredamento
- Parzialmente arredato
- Cucina
- Abitabile
- Sala pranzo
- Sì
- Sala
- Sì
- Studio
- Sì
- Taverna
- Sì
- Ripostiglio
- Sì
- Giardino privato
- Sì (1800 m2)
- Box auto
- Sì
- Terreno
- Sì
- Prest. Energ. Inverno
- 0
Classe energetica
Distanze
- Centro
- 100 m
- Centro Commerciale
- 150 m
- Parco
- 300 m
- Fermata BUS
- 50 m
- Scuole per l'infanzia
- 900 m
- Scuole Elementari
- 900 m
- Scuole Medie
- 1200 m
Planimetrie
Contatta l'agenzia
- Visitato 251 volte
- Salvato tra i preferiti 0 volte
Salva le ricerche per ricevere notifiche per i nuovi annunci inseriti e per quelli che hanno cambiato prezzo.
Non sei ancora registrato? Registrati subito!
- BROKER X TE
- Viale Galilei, 122
- Carrara (MS)
Rif. annuncio: 947c
Il proprietario preferisce non mostrare l'indirizzo esatto, l'immobile più o meno si trova qui...
- Avenza, Carrara (MS)
Calcola mutuo
I risultati ottenuti sono indicativi perchè calcolati sui dati inseriti.







