Superficie
Vani
Camere
Bagni
Descrizione
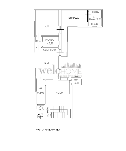
In strada interna e tranquilla, nel cuore del centro storico di Campi Bisenzio, proponiamo in vendita ottimo appartamento di 3 vani, circa 85 mq, completamente ristrutturato nel 2023.
L’immobile si trova al primo e ultimo piano di un terratetto trifamiliare, privo di spese condominiali, ed è composto da ingresso, luminoso soggiorno con piccolo e pratico ripostiglio, cucina abitabile con zona pranzo, ampia camera matrimoniale e bagno finestrato con doccia.
La proprietà dispone inoltre di uno spazio esterno abitabile, accessibile sia dalla cucina che dalla camera da letto: una vera comodità per una casa situata in pieno centro, ideale per momenti di relax, pranzi e cene all’aperto, garantendo privacy e tranquillità.
Completano la proprietà un vano lavanderia finestrato e una comoda soffitta con accesso diretto dall’abitazione.
Soluzione ideale per chi cerca comfort, indipendenza e una posizione centrale, vicina a tutti i principali servizi.
Per ulteriori informazioni o per fissare una visita, non esitate a contattarci.
Caratteristiche
- Prezzo
- € 228.000
- Contratto
- Vendita
- Tipologia
- Appartamento
- Spese mensili
- 5
- Riferimento
- K683
- Superficie
- 80 m2
- Condizioni
- Ottimo
- Vani
- 3
- Camere
- 1
- Bagni
- 1
- Piano
- 1°
- Piani totali
- 1
- Terrazzi
- 1
- Balconi
- 1
- Riscaldamento
- Autonomo
- Condizionatore
- Sì
- Arredamento
- Non arredato
- Cucina
- Abitabile
- Ripostiglio
- Sì
- Soffitta
- Sì
- Prest. Energ. Inverno
- media
Classe energetica
Planimetrie
Virtual tour
Panoramiche
Video
Contatta l'agenzia
- Visitato 3 volte
- Salvato tra i preferiti 0 volte
Salva le ricerche per ricevere notifiche per i nuovi annunci inseriti e per quelli che hanno cambiato prezzo.
Non sei ancora registrato? Registrati subito!
- WelchomeImmobiliare
- Via Santo Stefano, 104
- Campi Bisenzio (FI)
Rif. annuncio: K683
Il proprietario preferisce non mostrare l'indirizzo esatto, l'immobile più o meno si trova qui...
- Via Santo Stefano,
- Centro, Campi Bisenzio (FI)
Calcola mutuo
I risultati ottenuti sono indicativi perchè calcolati sui dati inseriti.







