Superficie
Vani
Camere
Bagni
Descrizione
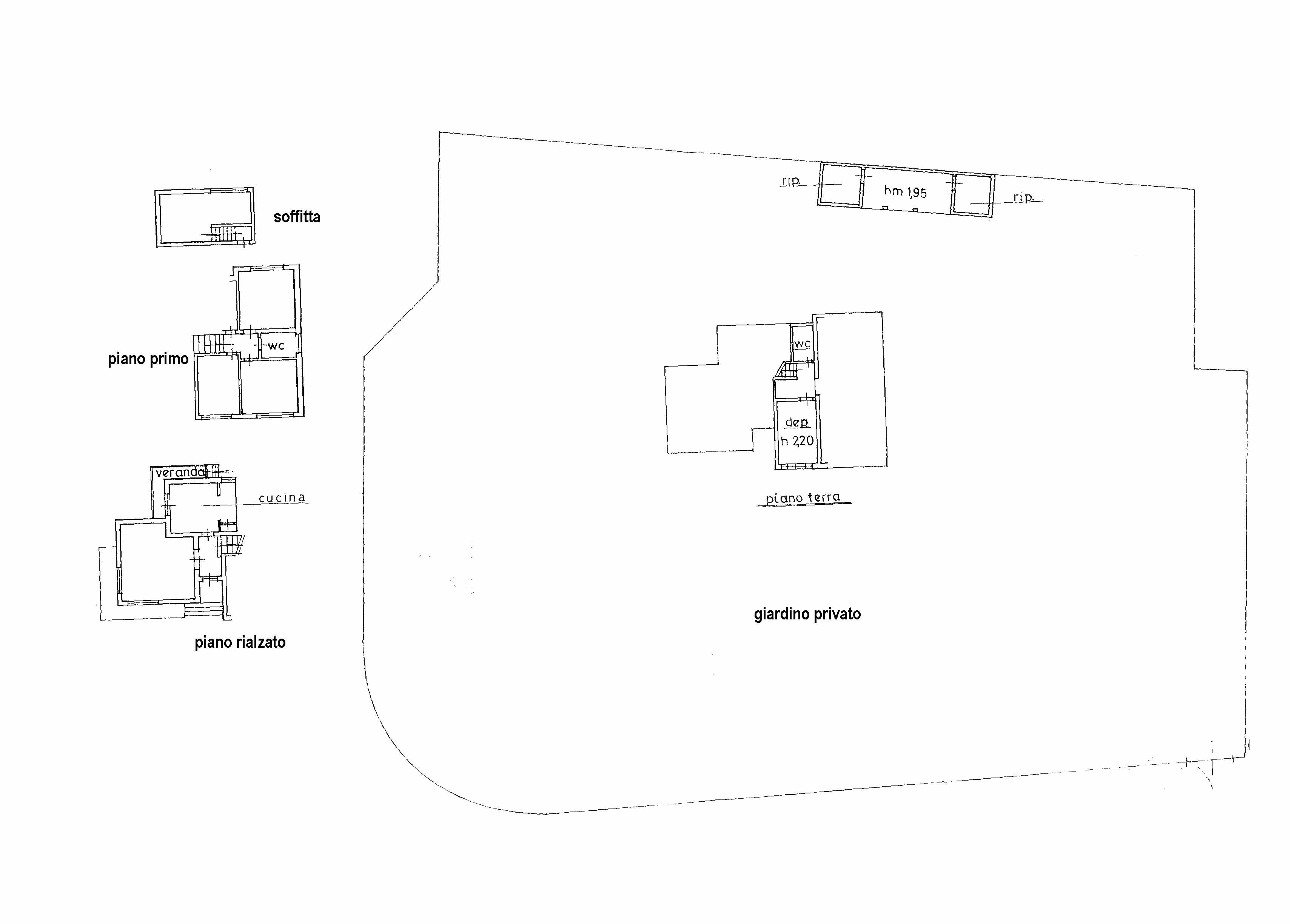
L’abitazione si sviluppa principalmente su un unico livello ed è composta da ingresso, ampio e luminoso soggiorno con accesso al balcone, cucina abitabile con balcone verandato. La zona notte, leggermente sfalsata di pochi gradini, ospita tre camere da letto e bagno con finestra, offrendo una piacevole separazione degli ambienti e maggiore riservatezza.
Gli spazi interni, tipici dell’epoca, si distinguono per le generose metrature e per una distribuzione funzionale, con ottime possibilità di personalizzazione.
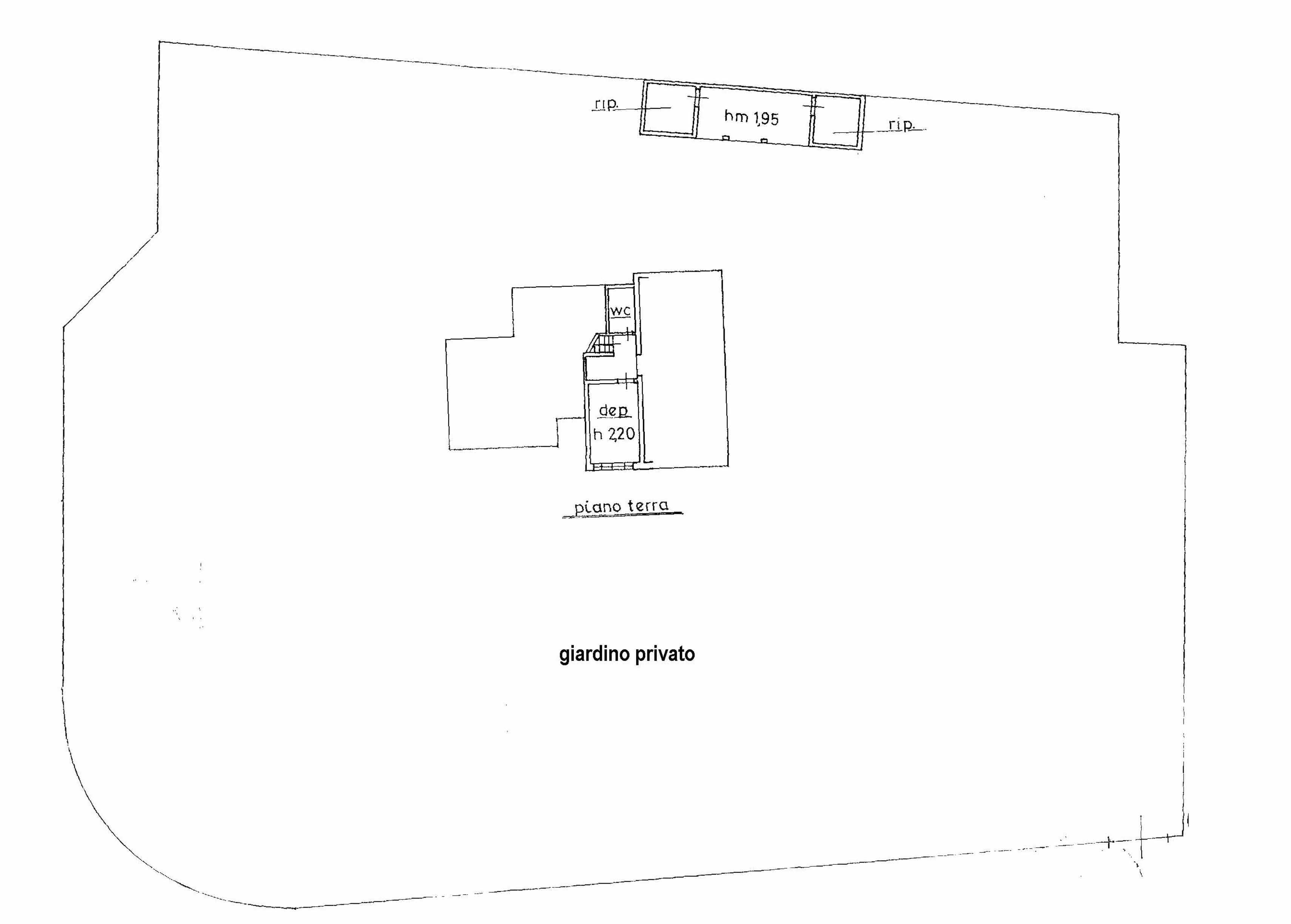
Completano la proprietà una soffitta, ideale come spazio accessorio o di deposito grazie alla presenza di una ampia finestra; un comodo garage con annesso locale deposito e bagno di servizio ed un locale sottotetto.
Il parco, vero punto di forza della villa, rappresenta un’oasi esclusiva perfetta per momenti di relax, attività all’aperto o per la realizzazione di una piscina. La presenza di alberature mature e ampie zone verdi crea un’atmosfera riservata e suggestiva.
Soluzione ideale per chi è alla ricerca di indipendenza, ampi spazi e un contesto naturale di grande fascino.
Caratteristiche
- Prezzo
- € 440.000
- Contratto
- Vendita
- Tipologia
- Villa
- Riferimento
- 1282
- Superficie
- 194 m2
- Condizioni
- Da rivedere
- Vani
- 6
- Camere
- 3
- Bagni
- 2
- Posti auto
- 4
- Piano
- Piano rialzato (Ultimo)
- Piani totali
- 2
- Camere singole
- 1
- Balconi
- 2
- Riscaldamento
- Autonomo
- Condizionatore
- No
- Arredamento
- Non arredato
- Cucina
- Abitabile
- Soffitta
- Sì
- Giardino privato
- Sì (2500 m2)
- Garage
- 1 (42 m2)
- Prest. Energ. Inverno
- 0
Classe energetica
Planimetrie
Contatta l'agenzia
- LA AURORA Immobiliare
- Via Tosco Romagnola, 2120/2122
- Cascina (PI)
Rif. annuncio: 1282
- Visitato 1136 volte
- Salvato tra i preferiti 1 volte
Salva le ricerche per ricevere notifiche per i nuovi annunci inseriti e per quelli che hanno cambiato prezzo.
Non sei ancora registrato? Registrati subito!
- LA AURORA Immobiliare
- Via Tosco Romagnola, 2120/2122
- Cascina (PI)
Rif. annuncio: 1282
Il proprietario preferisce non mostrare l'indirizzo esatto, l'immobile più o meno si trova qui...
- Oratoio,
- Riglione Oratoio, Pisa (PI)
Calcola mutuo
I risultati ottenuti sono indicativi perchè calcolati sui dati inseriti.







