Superficie
Vani
Camere
Bagni
Descrizione
Soluzione ideale per chi cerca un appartamento ben posizionato e ben mantenuto. [Classe energetica: F]
Caratteristiche
- Prezzo
- € 280.000
- Contratto
- Vendita
- Tipologia
- Appartamento
- Spese mensili
- 400 annui
- Riferimento
- 36E
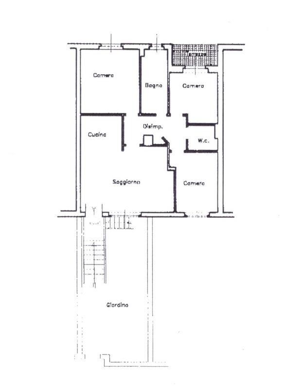
- Superficie
- 95 m2
- Condizioni
- Ottimo
- Vani
- 5
- Camere
- 3
- Bagni
- 3
- Piano
- Piano rialzato
- Piani totali
- 2
- Camere singole
- 2
- Terrazzi
- 1
- Riscaldamento
- Autonomo
- Condizionatore
- Solo predisposizione
- Arredamento
- Parzialmente arredato
- Cucina
- Abitabile
- Taverna
- Sì
- Garage
- 1
- Resede
- Sì (50 m2)
- Lastricato
- Sì
- Prest. Energ. Inverno
- media
Classe energetica
Planimetrie
Contatta l'agenzia
- Visitato 43 volte
- Salvato tra i preferiti 0 volte
Salva le ricerche per ricevere notifiche per i nuovi annunci inseriti e per quelli che hanno cambiato prezzo.
Non sei ancora registrato? Registrati subito!
- CRISTINA BIANCIARDI
- Via Oberdan, 30
- Colle di Val d'Elsa (SI)
Rif. annuncio: 36E
Il proprietario preferisce non mostrare l'indirizzo esatto, l'immobile più o meno si trova qui...
- Agrestone,
- AGRESTONE, Colle di Val d'Elsa (SI)
Calcola mutuo
I risultati ottenuti sono indicativi perchè calcolati sui dati inseriti.







