Superficie
Vani
Camere
Bagni
Descrizione
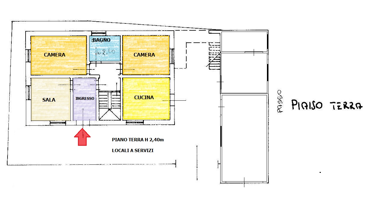
L’immobile è attualmente suddiviso in due unità funzionali, collegate da scala interna, ma con ingressi indipendenti:
Piano Primo (Abitazione principale): Accessibile tramite scala esterna, si apre su una luminosa sala da pranzo comunicante con il soggiorno servito da terrazzo. Completano il piano una cucina abitabile, disimpegno, due camere matrimoniali e un bagno. Altezza soffitti: 3,00 m.
Piano Terra (Locali di servizio): Con altezza di 2,40 m, è configurato come un secondo appartamento con ingresso, soggiorno, cucina, due camere e bagno.
Pertinenze: Soffitta uso ripostiglio e annessi in muratura esterni attualmente uso taverna con servizio e rimessa/lavanderia.
L'appartamento al piano primo si presenta in buono stato di manutenzione, mentre il piano terra necessita lavori di ristrutturazione/ammodernamento offrendo nel complesso la possibilità di personalizzare le finiture sfruttando i bonus edilizi.
Per motivi di privacy l'indirizzo pubblicato non corrisponde all'esatta ubicazione dell'immobile ma è indicativo della zona.
Caratteristiche
- Prezzo
- € 330.000
- Contratto
- Vendita
- Tipologia
- Villa
- Riferimento
- 5824-V
- Superficie
- 200 m2
- Condizioni
- Discreto
- Vani
- 10
- Camere
- 4
- Bagni
- 2
- Posti auto
- 4
- Piano
- Più livelli
- Piani totali
- 1
- Balconi
- 1
- Riscaldamento
- Autonomo
- Condizionatore
- Sì
- Arredamento
- Non arredato
- Cucina
- Abitabile
- Sala pranzo
- Sì
- Soffitta
- Sì
- Giardino privato
- Sì (900 m2)
- Prest. Energ. Inverno
- 0
Classe energetica
Planimetrie
Virtual tour
Panoramiche
Video
Contatta l'agenzia
- Visitato 124 volte
- Salvato tra i preferiti 0 volte
Salva le ricerche per ricevere notifiche per i nuovi annunci inseriti e per quelli che hanno cambiato prezzo.
Non sei ancora registrato? Registrati subito!
- DIMENSIONE CASA Immobiliare
- Via Romana, 2360
- Lucca (LU)
Rif. annuncio: 5824-V
Il proprietario preferisce non mostrare l'indirizzo esatto, l'immobile più o meno si trova qui...
- Viale Europa,
- Marlia, Capannori (LU)
Calcola mutuo
I risultati ottenuti sono indicativi perchè calcolati sui dati inseriti.







