Superficie
Vani
Camere
Bagni
Descrizione
Caratteristiche
- Prezzo
- € 750
- Contratto
- Affitto
- Tipologia
- Appartamento
- Riferimento
- F/0768
- Superficie
- 55 m2
- Condizioni
- Ottimo
- Vani
- 2
- Camere
- 1
- Bagni
- 1
- Posti auto
- 1
- Piano
- 1° (Ultimo)
- Piani totali
- 3
- Ascensore
- Sì
- Riscaldamento
- Autonomo
- Condizionatore
- Sì
- Arredamento
- Arredato
- Cucina
- Angolo cottura
- Sala
- Sì (25 m2)
- Cantina
- Sì (6 m2)
- Prest. Energ. Inverno
- media
Classe energetica
Distanze
- Centro
- 1000 m
- Centro Commerciale
- 700 m
- Parco
- 200 m
- Stazione FS
- 1500 m
- Fermata BUS
- 100 m
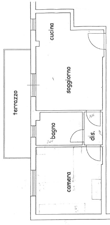
Planimetrie
Virtual tour
Panoramiche
Video
Contatta l'agenzia
- Visitato 139 volte
- Salvato tra i preferiti 0 volte
Salva le ricerche per ricevere notifiche per i nuovi annunci inseriti e per quelli che hanno cambiato prezzo.
Non sei ancora registrato? Registrati subito!
- EMPOLI CLUB IMMOBILIARE
- Via Roma, 77
- Empoli (FI)
Rif. annuncio: F/0768
Il proprietario preferisce non mostrare l'indirizzo esatto, l'immobile più o meno si trova qui...
- Via Luigi Lazzeri, 50053
- Empoli (FI)







