Superficie
Vani
Camere
Bagni
Descrizione
L’ accesso avviene da resede privato che introduce ad un contesto riservato; da qui, tramite ascensore/montacarichi ad uso esclusivo, si raggiunge direttamente il piano primo, eliminando ogni barriera architettonica e rendendo l’immobile particolarmente funzionale.
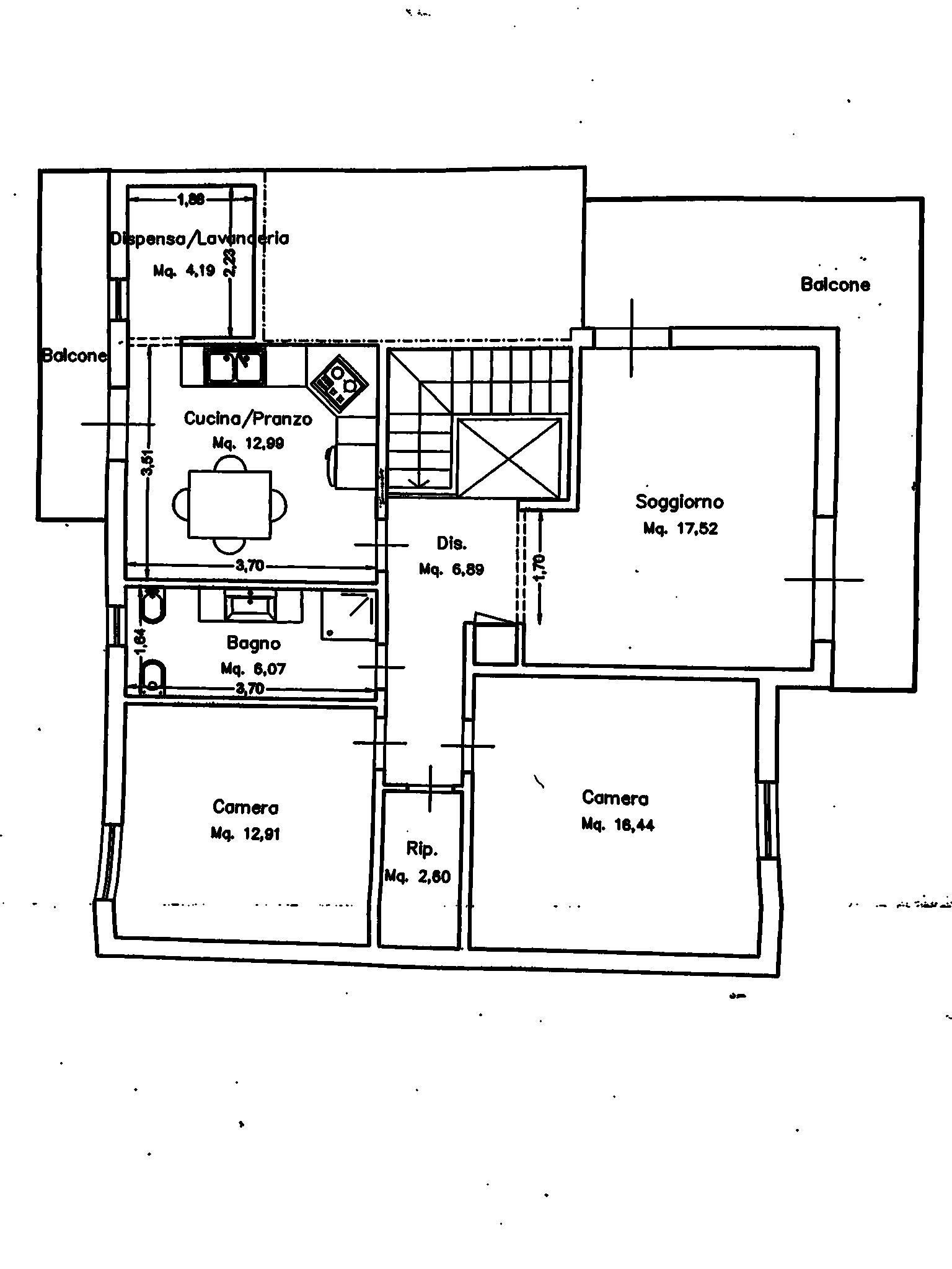
L’ingresso si apre nella zona giorno, ambiente accogliente e ben organizzato, con accesso diretto alla terrazza angolare di circa 15 mq, spazio esterno che dona respiro e luminosità. A seguire la cucina abitabile separata, con accesso alla seconda terrazza.
Il disimpegno accompagna alla zona notte composta da due camere, servizio igienico finestrato e pratico ripostiglio.
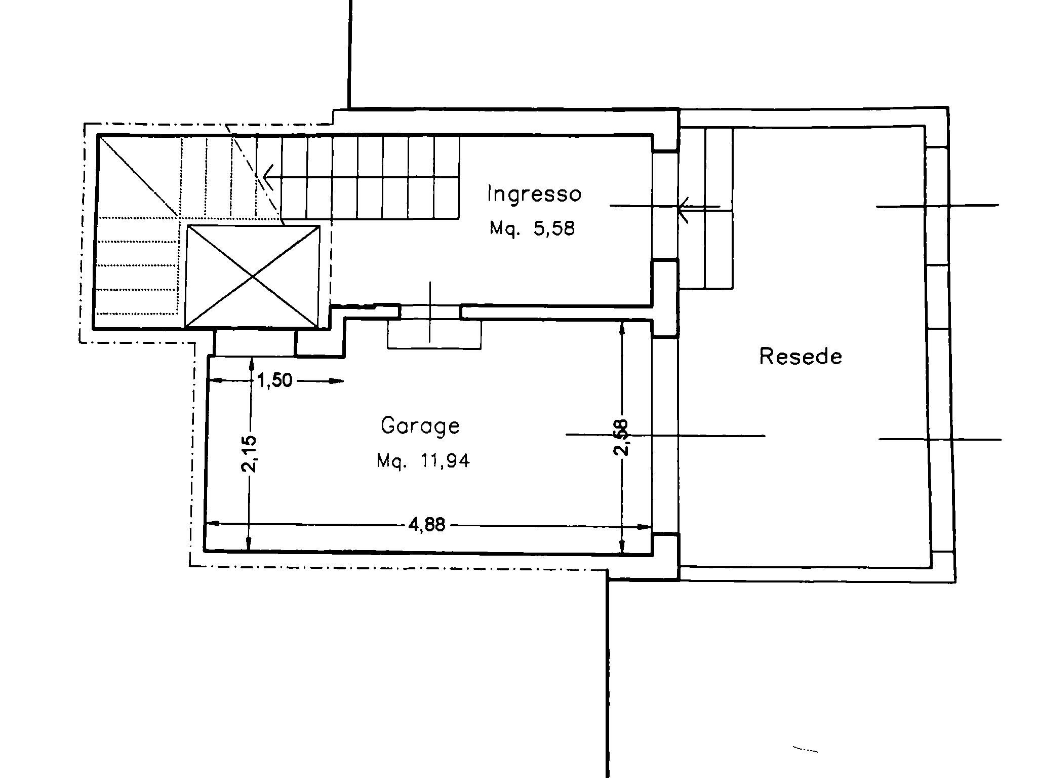
Completa la proprietà il garage al piano terreno, collegato sia internamente che esternamente, oltre a due posti auto scoperti esclusivi.
l’immobile è stato oggetto di attenta ristrutturazione e si presenta in ottimo stato di manutenzione; dotato di porta blindata, aria condizionata e addolcitore, elementi che aumentano sensibilmente il comfort abitativo.
Soluzione ideale per chi cerca un immobile funzionale, indipendente e ben tenuto in contesto tranquillo ma vicino ai servizi.
Classe energetica: G IPE: 160,00 Euro 260.000,00.
Caratteristiche
- Prezzo
- € 260.000 Trattabili
- Contratto
- Vendita
- Tipologia
- Appartamento
- Riferimento
- BB/0354
- Superficie
- 100 m2
- Condizioni
- Ristrutturato
- Vani
- 4
- Camere
- 2
- Bagni
- 1
- Posti auto
- 2
- Piano
- 1°
- Piani totali
- 3
- Ascensore
- Sì
- Camere doppie
- 1
- Balconi
- 2
- Riscaldamento
- Autonomo
- Condizionatore
- Sì
- Arredamento
- Nessuno
- Cucina
- Abitabile
- Sala pranzo
- Sì
- Sala
- Sì
- Studio
- Sì
- Ripostiglio
- Sì (2 m2)
- Garage
- 1 (11 m2)
- Resede
- Sì
- Prest. Energ. Inverno
- media
Classe energetica
Distanze
- Centro
- 2000 m
- Centro Commerciale
- 3000 m
- Parco
- 1000 m
- Stazione FS
- 1400 m
Planimetrie
Virtual tour
Panoramiche
Video
Contatta l'agenzia
- Visitato 239 volte
- Salvato tra i preferiti 0 volte
Salva le ricerche per ricevere notifiche per i nuovi annunci inseriti e per quelli che hanno cambiato prezzo.
Non sei ancora registrato? Registrati subito!
- EMPOLI CLUB IMMOBILIARE
- Via Roma, 77
- Empoli (FI)
Rif. annuncio: BB/0354
Il proprietario preferisce non mostrare l'indirizzo esatto, l'immobile più o meno si trova qui...
- Via di Pratignone,
- Empoli (FI)
Calcola mutuo
I risultati ottenuti sono indicativi perchè calcolati sui dati inseriti.







