Superficie
Vani
Camere
Bagni
Descrizione
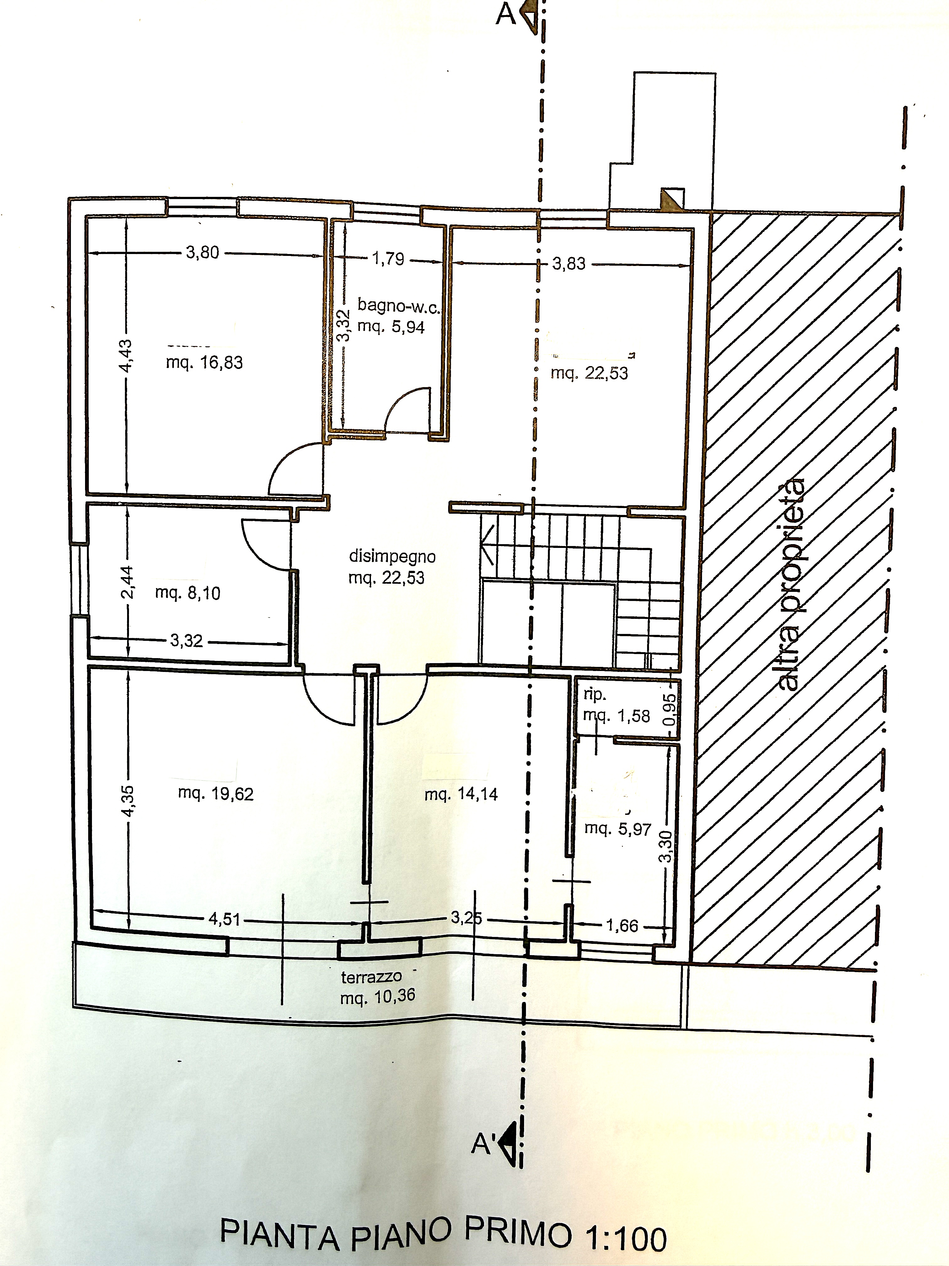
Sovigliana, zona Clinica, in posizione semicollinare, proponiamo in vendita appartamento di cinque vani, con ingresso indipendente, posto al primo ed ultimo piano di bifamiliare.
L'abitazione è composta da ingresso, soggiorno con sala da pranzo, cucinotto con terrazza, ampio disimpegno, due camere da letto matrimoniali, cameretta/studio e servizio igienico finestrato.
A completare la proprietà giardino tergale di circa 140 mq.
ACCESSORI: porta blindata e climatizzatore.
NO SPESE CONDOMINIALI!!!
Si precisa che l'indirizzo presente non identifica l'esatta ubicazione dell'attività questo al fine di tutelare la privacy e la riservatezza del venditore. Per maggiori informazioni e per organizzare una visita all'immobile o per proporvi alternative immobiliari adatte alle vostre esigenze potete contattare telefonicamente o tramite e-mail l'agenzia e dare il seguente riferimento SR/522.
Caratteristiche
- Prezzo
- € 228.000
- Contratto
- Vendita
- Tipologia
- Appartamento
- Riferimento
- SR/522
- Superficie
- 125 m2
- Condizioni
- Buono
- Vani
- 5
- Camere
- 3
- Bagni
- 1
- Posti auto
- 2
- Piano
- 1° (Ultimo)
- Piani totali
- 2
- Camere singole
- 1
- Terrazzi
- 1
- Riscaldamento
- Autonomo
- Condizionatore
- Sì
- Arredamento
- Non arredato
- Cucina
- Abitabile
- Sala pranzo
- Sì (15 m2)
- Studio
- Sì (8 m2)
- Ripostiglio
- Sì (2 m2)
- Giardino privato
- Sì (140 m2)
- Prest. Energ. Inverno
- media
Classe energetica
Distanze
- Centro
- 500 m
- Centro Commerciale
- 500 m
- Stazione FS
- 2000 m
- Scuole per l'infanzia
- 1000 m
- Scuole Elementari
- 1000 m
Planimetrie
Contatta l'agenzia
- Visitato 81 volte
- Salvato tra i preferiti 0 volte
Salva le ricerche per ricevere notifiche per i nuovi annunci inseriti e per quelli che hanno cambiato prezzo.
Non sei ancora registrato? Registrati subito!
- eSSe Immobiliare
- Via Cavour, 47
- Empoli (FI)
Rif. annuncio: SR/522
Il proprietario preferisce non mostrare l'indirizzo esatto, l'immobile più o meno si trova qui...
- V. Pietro Grocco, 50059
- Sovigliana, Vinci (FI)
Calcola mutuo
I risultati ottenuti sono indicativi perchè calcolati sui dati inseriti.







