Superficie
Vani
Camere
Bagni
Descrizione
L’immobile si distingue per la straordinaria luminosità, grazie all’ottima esposizione e all’assenza di fabbricati ravvicinati, che garantiscono privacy e luce naturale durante tutto l’arco della giornata. Il terrazzo, vivibile e ben sfruttabile, consente di pranzare comodamente all’aperto.
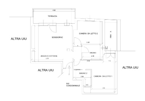
Così composto: ingresso con porta blindata, piccolo corridoio che conduce ad un ampio e accogliente soggiorno-tinello con cucina a vista e accesso diretto al terrazzo.
La zona notte è composta da: camera matrimoniale con bagno privato e balcone, camera doppia e secondo bagno
Completa la proprietà un ampio posto auto in garage.
Dotazioni e finiture: Infissi nuovi profilo Veka ( made in Italy), Tapparelle elettriche, Zanzariere, Connessione internet in ogni stanza, Caldaia a gas, impianto di climatizzazione con completo.
L’appartamento viene venduto completamente arredato nuovo e comprensivo di tutti gli elettrodomestici.
Soluzione ideale sia come casa vacanze sia come abitazione principale, pronta da vivere. Gli indirizzi inseriti all'interno degli annunci sono orientativi e sono solo un utile aiuto nell'individuazione della zona ove è ubicato l'immobile; nel rispetto della 'privacy' e della riservatezza dei venditori. Gli allestimenti sono ipotizzati su fotografie reali. Alcuni dati tecnici presenti in questa scheda potrebbero essere approssimativi. Le informazioni dettagliate verranno fornite su appuntamento in agenzia.
Per maggiori informazioni e/o chiarimenti non esitate a contattarci al 348 44 52 836.
Visitate il nostro sito www.agenziaimmobiliareilsole.com
Caratteristiche
- Prezzo
- € 360.000 Trattabili
- Contratto
- Vendita
- Tipologia
- Appartamento
- Riferimento
- R602
- Superficie
- 70 m2
- Condizioni
- Ristrutturato
- Vani
- 3
- Camere
- 2
- Bagni
- 2
- Posti auto
- 1
- Piano
- 1°
- Terrazzi
- 1
- Balconi
- 1
- Riscaldamento
- Si
- Condizionatore
- Sì
- Arredamento
- Arredato
- Cucina
- Soggiorno - cucina
- Garage
- 1
- Prest. Energ. Inverno
- 0
Classe energetica
Distanze
- Mare
- 300 m
Planimetrie
Contatta l'agenzia
- Visitato 190 volte
- Salvato tra i preferiti 0 volte
Salva le ricerche per ricevere notifiche per i nuovi annunci inseriti e per quelli che hanno cambiato prezzo.
Non sei ancora registrato? Registrati subito!
- Agenzia immobiliare il sole di Soldati
- Via Pisa, 27
- Massa (MS)
Rif. annuncio: R602
Il proprietario preferisce non mostrare l'indirizzo esatto, l'immobile più o meno si trova qui...
- Via Pisa, 25
- Ronchi, Massa (MS)
Calcola mutuo
I risultati ottenuti sono indicativi perchè calcolati sui dati inseriti.







